住む
佐久穂町の
いい住まい、ご紹介します。
- TOP
- 住む
- 空き家・空き地バンク
- 空き家
- 登録番号136 大日向2
登録番号136 大日向2
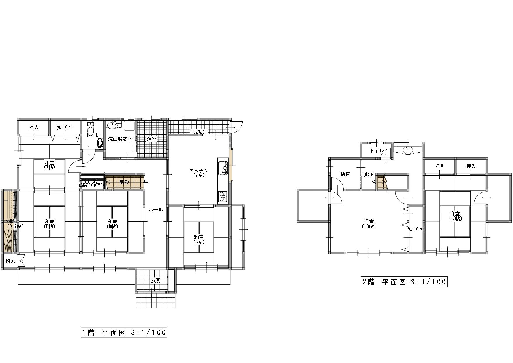
詳細情報
| 敷地面積 | 約487.56m2 |
|---|---|
| 延床面積 | 約168.64m2 |
| 築年 | 平成14年築 |
| 利用状況 | 令和6(2024)年から空き家 |
| 設備状況 | 電気 中部電力 水道 佐久水道企業団 下水道 浄化槽 トイレ 水洗・様式 ガス プロパンガス 風呂 灯油 駐車場 あり |
| 補修の要否 | - |
| ペット | 要相談 |
| 特記事項 | 納戸1つ 貸主様使用予定 |
| その他 | ・現在使用中、8月末入居可 ・冬の電気代(凍結防止帯の電気代約1万円かかります) ・ご希望者には農地と農機具お貸しします |
周辺施設情報
| 交通 | JR小海線海瀬駅 約8.8km |
|---|---|
| スーパー | ユーパレット南佐久店 約9.3km |
| 保育園 | 海瀬保育園 約8.6km |
| 小・中学校 | 佐久穂小中学校 約8.8km |
| その他施設 | 茂来学園大日向小学校 約2.1km こどもセンターさくほっこ 約8.2km 佐久穂町役場 約9.0km 町立千曲病院 約9.3km 茂来館(図書館) 約8.7km |


















