住む
佐久穂町の
いい住まい、ご紹介します。
- TOP
- 住む
- 空き家・空き地バンク
- 空き家
- 登録番号130 下畑
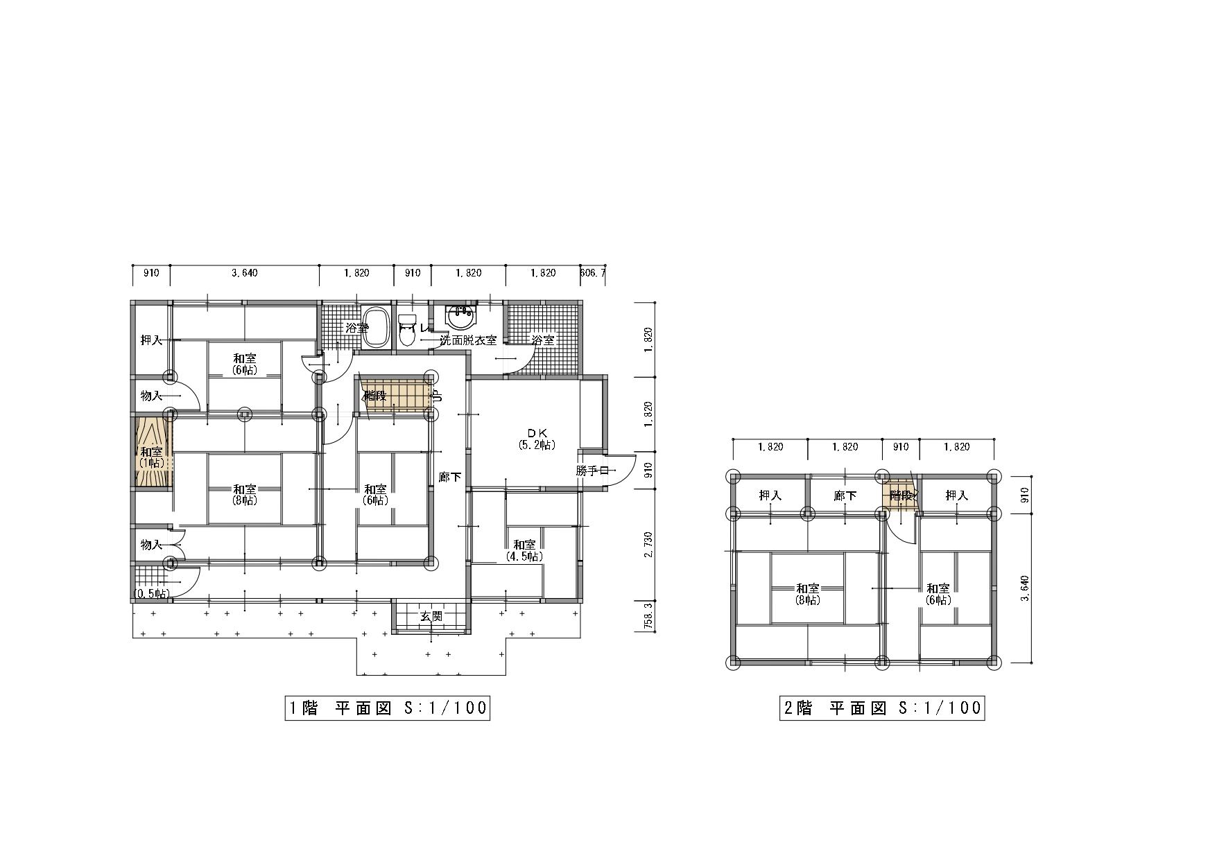
登録番号130 下畑
詳細情報
| 敷地面積 | 184.08m2 |
|---|---|
| 延床面積 | 112.29m2 |
| 築年 | 昭和34年築 |
| 利用状況 | 令和2年から空き家 |
| 設備状況 | 電気(中部電力) ガス(プロパンガス) 風呂(灯油) トイレ(水洗・洋式) 水道 佐久水道企業団 下水道 佐久環境衛生組合 |
| 補修の要否 | 大幅な補修必要 |
| ペット | - |
| 特記事項 | 駐車場あり(2台分) 庭あり |
| その他 | ・灯油タンク撤去済み ・トイレ、お風呂改修済み |
周辺施設情報
| 交通 | JR小海線海瀬駅 約2.0km |
|---|---|
| スーパー | ユーパレット南佐久店 約0.7km |
| 保育園 | 八千穂保育園 約1.3km |
| 小・中学校 | 佐久穂小中学校 約1.5km |
| その他施設 | こどもセンター 約1.8km 大日向小学校 約8.0km 佐久穂町役場 約1.4km 町立千曲病院 約1.5km 茂来館(図書館) 約2.4km |















