住む
佐久穂町の
いい住まい、ご紹介します。
- TOP
- 住む
- 空き家・空き地バンク
- 空き家
- 登録番号128 影 【交渉中】
登録番号128 影 【交渉中】
詳細情報
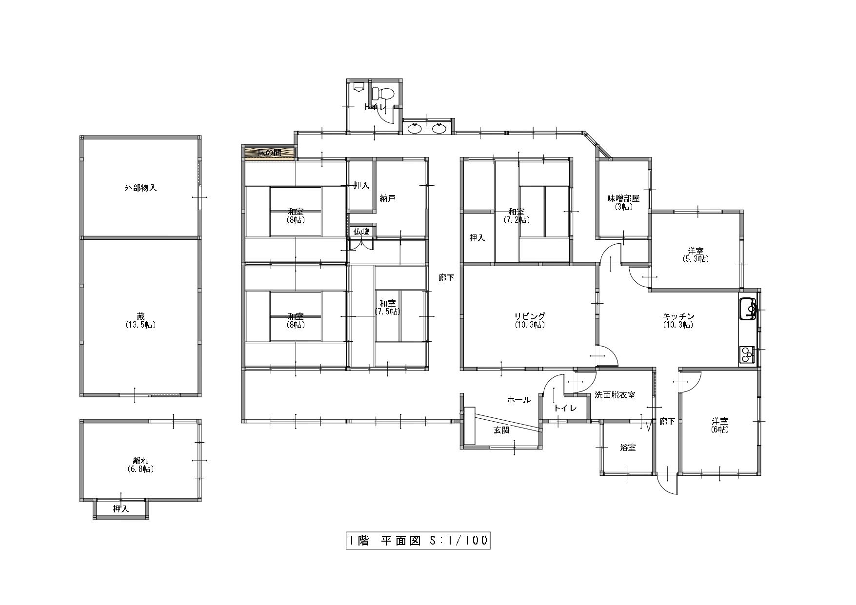
| 敷地面積 | 655.76m2 |
|---|---|
| 延床面積 | 181.37m2 |
| 築年 | 築年不詳 (築100年以上) |
| 利用状況 | 平成27年頃から空き家 |
| 設備状況 | 電気(中部電力) ガス(プロパンガス) 風呂(灯油) トイレ(水洗・洋式) 水道 佐久水道企業団 下水道 佐久環境衛生組合 |
| 補修の要否 | 多少の補修は必要 |
| ペット | - |
| 特記事項 | 離れあり 蔵あり 駐車場あり(3台分) |
| その他 | - |
周辺施設情報
| 交通 | JR小海線羽黒下駅 約4.2km |
|---|---|
| スーパー | ツルヤ佐久穂店 約3.7km |
| 保育園 | 栄保育園 約3.3km |
| 小・中学校 | 佐久穂小中学校 約4.2km |
| その他施設 | こどもセンター 約4.2km 大日向小学校 約10.4km 佐久穂町役場 約3.7km 町立千曲病院 約3.2km 茂来館(図書館) 約4.8km |














