住む
佐久穂町の
いい住まい、ご紹介します。
- TOP
- 住む
- 空き家・空き地バンク
- 空き家
- 登録番号69 大門
登録番号69 大門
| 所在地 | 佐久穂町大字畑693-1(615-1)、692 |
|---|---|
| 賃貸・売買区分 | 売買 |
| 価格 | 50万円 |
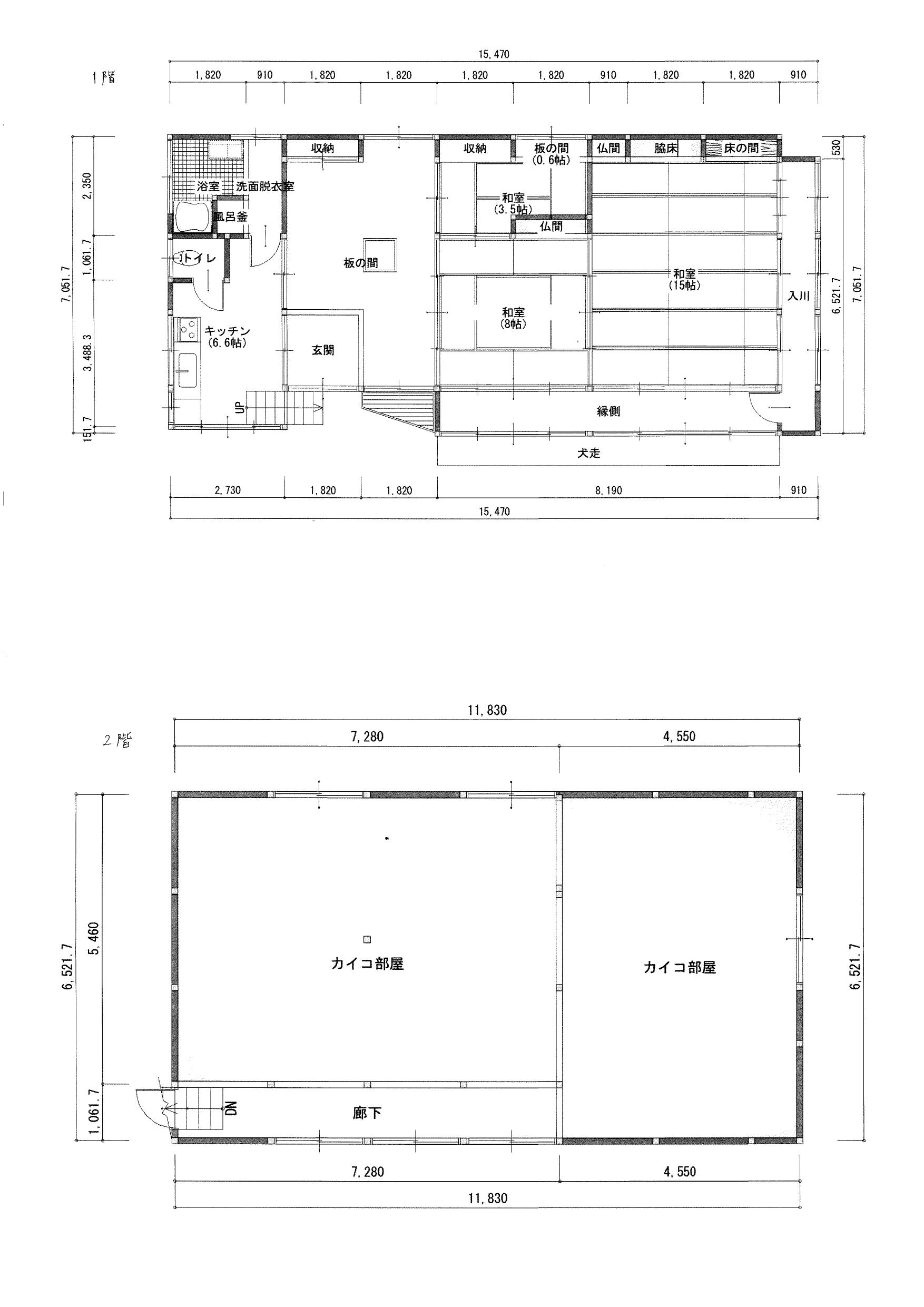
| 間取り | 4K |
詳細情報
| 敷地面積 | 531.19m2 |
|---|---|
| 延床面積 | 181.46m2(1階:104.32m2、2階:77.14m2) |
| 築年 | 大正5年築 |
| 利用状況 | - |
| 設備状況 | 電気 中部電力 水道 佐久水道 下水道 未接続 トイレ 汲み取り ガス プロパンガス 風呂 灯油 駐車場 2台 |
| 補修の要否 | 古民家のため、大幅な補修必要 |
| ペット | - |
| 特記事項 | - |
| その他 | 古い小屋あり 別途農地・山林 |
周辺施設情報
| 交通 | JR小海線八千穂駅 約2.2km |
|---|---|
| スーパー | 約1.9km |
| 保育園 | 八千穂保育園 約0.2km |
| 小・中学校 | 佐久穂小中学校 約2.2km |
| その他施設 | 茂来学園大日向小学校 約9.1km こどもセンターさくほっこ 約3.1km 佐久穂町役場 約2.5km |
間取り図
準備中
位置図
